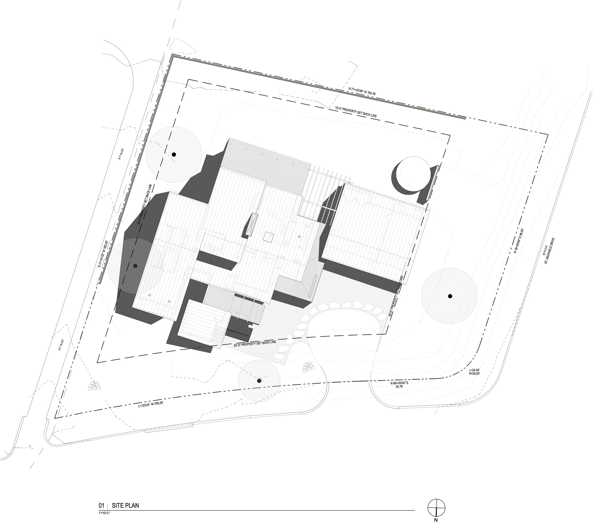
The site in an established enclave in central Dallas on a corner lot required attention to natural grades and a passive solar approach emphasizing daylighting and shading for this couple approaching retirement. Their interest in horticulture and native plantings informed the design and the protruding study on the ground floor offered views of the landscape and consistent natural ambient light to the north. The project utilized rainwater harvesting, efficient building envelope and other strategies in attaining LEED for Homes Gold certification.
(with GGO Architects 2009)
Back to Top