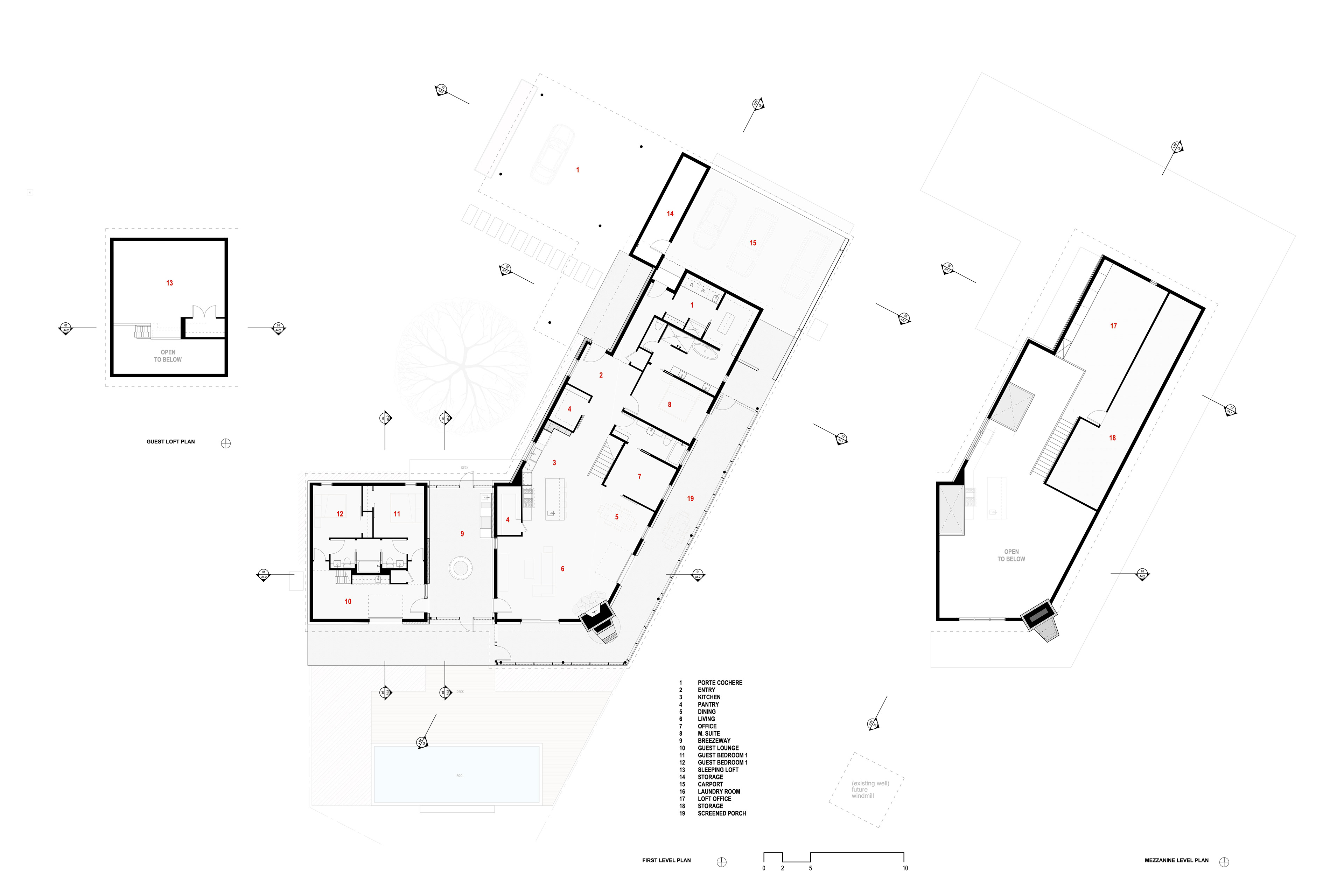
Metal building technology which was once reserved for agricultural and industrial buildings has made its way into other building types steadily over the years because of its efficiency and affordability. The clients for this home had a metal building in mind for their new home on their cattle ranch in Central Texas but wanted to depart from the standard pre-fab configurations and make it more site specific to capture breezes and optimize solar orientation and views of the property.
The homeowners have adult children and wanted to have guest quarters that would offer some privacy for visitors but also provide easy access to the main house. Exterior patio and breezeway spaces were covered and screened to make them more useable year round and a large porte cochere and car port were configured to create even more shaded areas surrounding the building to address the hot climate and cool the perimeters of the building. The building masses bend around a specimen oak tree that becomes a focus of the composition. A solar array with storage and rainwater catchment system and cysterns were utilized to provide added sustainablilty for the home.
Back to Top