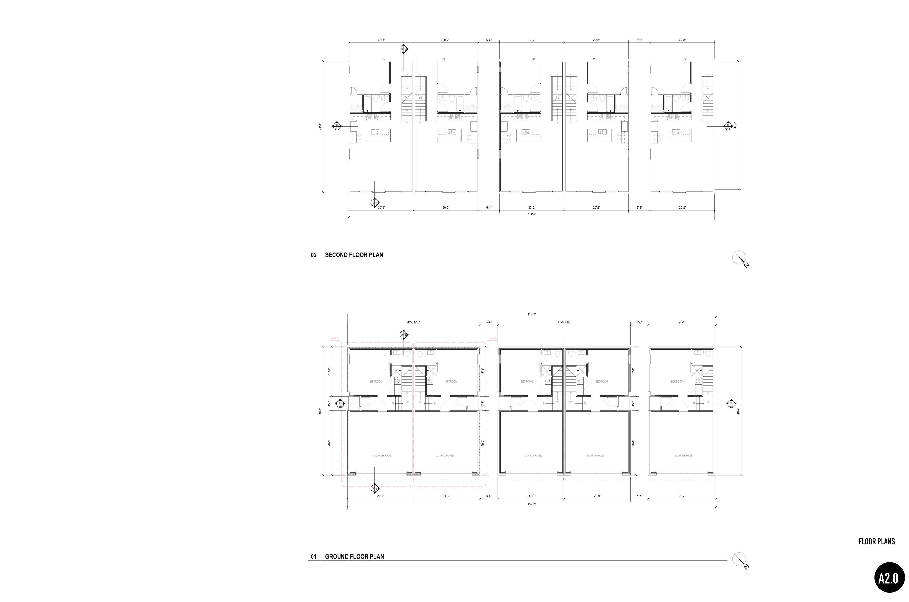
This townhome project adjacent to Deep Ellum and Fair Park, with the Santa Fe Trail directly across the street offered a site rich in urban connectivity. The street façade allowed southern exposure and with the addition of screen walls gave some sense of privacy from the shopping area across the street. Roof decks and skylights at the stair enclosures opened up more access to views and daylight. Garages were equipped with EV chargers and smart panels.
Back to Top